X

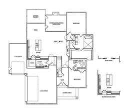
Floorplan Details

3216 square feet
4 bedrooms
4 / 1 full / half bathrooms

The Rackley is a beautifully designed 3,216-square-foot home that balances luxury, livability, and smart design. With 4 bedrooms, 4.5 bathrooms, and a 3-car garage, this spacious layout is perfect for everyday comfort and effortless entertaining.

covered front porch welcomes you into a light-filled foyer, leading to an inviting guest suite—ideal for visitors or multi-generational living. The first-floor primary suite offers a private retreat with a spa-inspired bath and generous walk-in closet. The heart of the home is the family room with a cozy fireplace, which flows seamlessly into the kitchenand dining area. The kitchen features a large island and an impressive walk-in pantry, perfect for meal prep and storage.

The dining area opens to a covered porch—with an optional screened porch and fireplace—creating a perfect space for indoor-outdoor living. Add the optional BBQ deck to complete your dream backyard retreat.

Upstairs, a spacious recreation room and loft offer flexible space for a media room, office, or play area. Two additional bedrooms provide comfort and privacy, making the Rackley a perfect fit for families who love open living and refined details.

The Rackley The RackleyView This Floor Plan

Contact Us

Interested in Finding Out More?

If you would like more information or would like to schedule a tour, fill out the information below and we will reply quickly to your request.

Please prove you are a human

IDX CopyrightThe data relating to real estate for sale on this web site comes in part from the Internet Data ExchangeTM Program of the Triangle MLS, Inc. of Cary. Real estate listings held by brokerage firms other than Hometowne Realty are marked with the Internet Data Exchange TM logo or the Internet Data ExchangeTM thumbnail logo and detailed information about them includes the name of the listing firms. Copyright 2026 Triangle MLS, Inc. of North Carolina. All rights reserved. The listing broker has attempted to offer accurate data, but buyers are advised to confirm all items. Information deemed reliable but not guaranteed.